Please complete the form below and a member of staff will be in touch shortly.
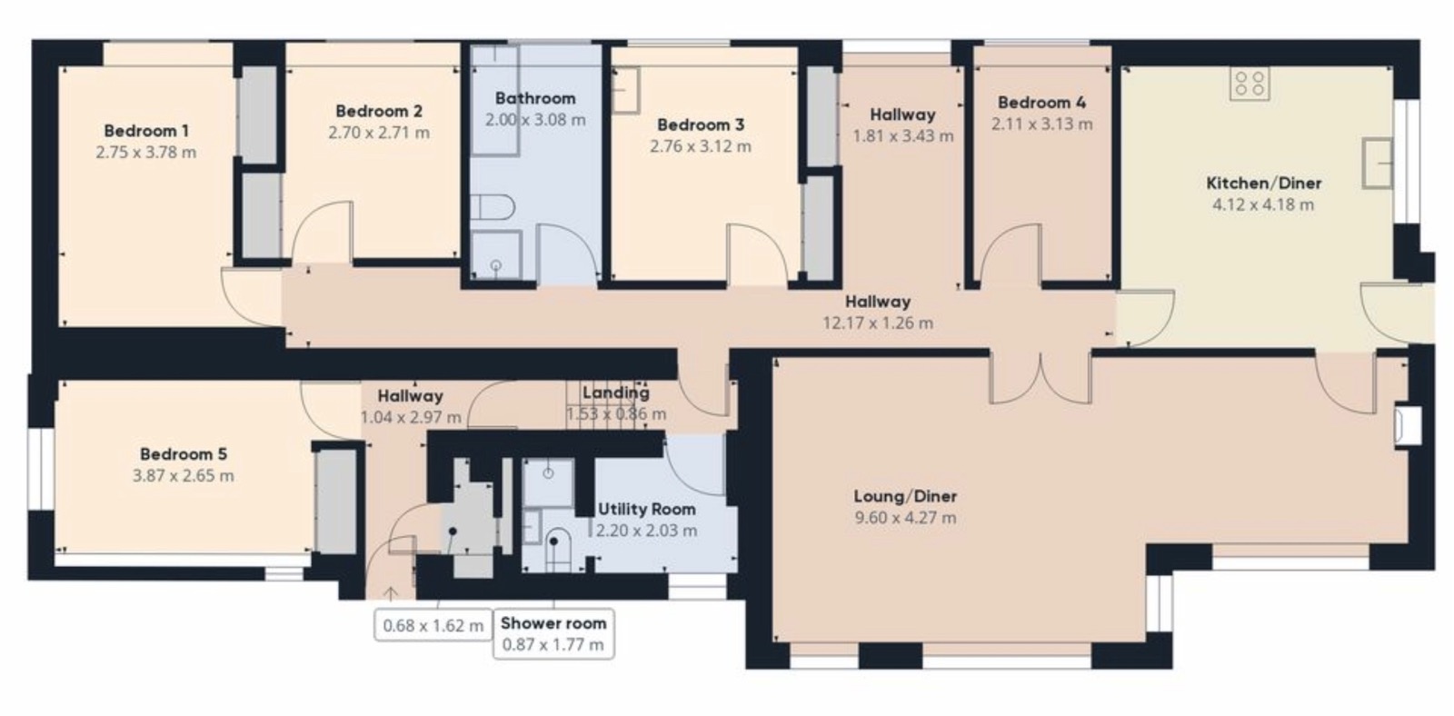
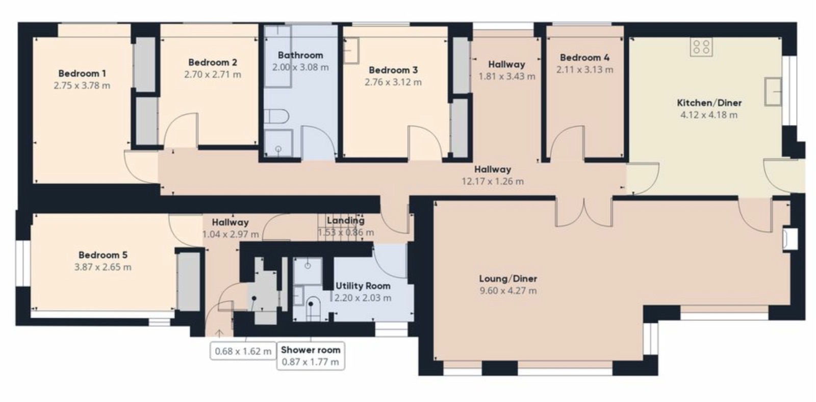
*NEW PRICE*Are you looking for a lifestyle property, this charming 5 bedroom detached bungalow set in 3.75 acres offers the discerning buyer a rare opportunity to purchase a comfortable private residence benefitting from renewable investment.
Director
Founder of Matt Morrison Property Group, Matt has been focusing on off market property sales, development and sourcing and has secured numerous deals to suit both seller and buyer needs.
With a quick sale strategy in mind, the new agency team will utilise Matt’s vast experience on completing transactions swiftly.
Head of Sales
Returning to the Scottish Borders after working in East Anglia and Yorkshire, Judith brings a wealth of agency experience as well as expert local knowledge now she’s back on home turf.
A genuine passion for property, Judith completed her first self-build project back in 2011 and has since gone on to project manage various refurbishments alongside growing her own Buy to Let portfolio.
StandardSaleUk is a modern estate agency with a prime focus on helping you sell, in a timeframe that suits you.
© 2024. StandardSaleUK.